
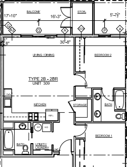
Grove Phase 1, Unit 301, (address: 250 Scott Lane):
- 2-bedroom 2-bathroom, approximately 850 square feet
- Range, refrigerator, dishwasher, microwave, large deck, storage, and washer & dryer.
- NO PETS ALLOWED
- Income Range: 80% to 120% of the Median Family Income -see income limits listed below
- Occupancy Requirement: Your household must have two (2) or more people
- The monthly rental amount is $2,130, this includes electricity, water, sewer, and trash.
- At least one adult in the household must work a minimum of 1,560 hours per year. Please read the policies to enter any weighted drawing: Housing Department Rules & Regulations, Section 4: Weighted Drawing.
- Initial rental term begins May/June 2025. The first month's rent + a $1,500 security deposit will be due at signing. The total security deposit due is $3,000, $1,500 can be paid in payments over one (1) year ($125 per month).
- Deadline to Apply: Tuesday, April 8th by 5:00 PM. If selected first for this unit you will be notified by phone and you must submit a complete application within 5 business days. All others will be sent an email notice.
Income Limits - households may not earn more than the limits listed below:
Two-Person Household: $85,184 to $127,776
Three-Person Household: $95,832 to $143,748
Four-Person Household: $106,480 to $159,720
Five-Person Household: $114,998 to $172,498
Six-Person Household: $123,517 to $185,275
Asset Limit - $319,440
The Housing Department has transitioned to a new online account and application platform.
If you have created and completed your interest application prior to March 26th, and you meet the income and asset qualifications for the specific unit currently available, you will receive an email from us inviting you to enter the drawing for this unit. If you have not received an invitation email, you may not enter this drawing.
Step 1: To be eligible to enter, you must have received an invitation email, click the link in the email to enter the drawing.
Step 2: Upload the following documents to your Interest Application before the deadline (April 8, 2025)
For Self Employment - please provide the following:
- Self-employment application here
Please contact the Housing Department if you have any questions or need assistance with the forms.
Floor Plan Photo
